58,82 zł/m2 cena: 4 000 zł

Udostępnij ofertę

Opis nieruchomości

Budynek posiada system monitoringu oraz jest zabezpieczony system Solid Security, do każdego lokalu osobny kod dostępu.
Wysoką jakość oraz przepustowość łączy internetowych zapewnia firma Vectra (poprowadzony światłowód).
Obszerny bezpłatny parking to niewątpliwie duży plus i wygoda dla pracowników. (3 miejsca w cenie).
Budynek jest doskonale usytuowany pod względem komunikacyjnym. Dla pracowników korzystających z komunikacji miejskiej ważną informacją będzie fakt, że w pobliżu (200m) jest pętla autobusowa.
Blokada cen prądu do końca 2026.
Teren ogrodzony, brama wjazdowa zamykana na noc.

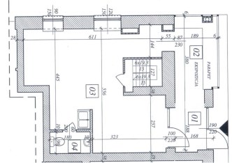
Lokal 65,23 mkw składa się z trzech pomieszczeń biurowych - 24,48 mkw, 14,58 mkw i 8,91 mkw, WC 7,01 mkw i korytarza 10,25 mkw.
Cena najmu 4000 z netto plus media /woda, prąd, gaz/ oraz opłaty eksploatacyjne ok 600 zł.

Nota prawna

Opis oferty zawarty na stronie internetowej sporządzany jest na podstawie oględzin nieruchomości oraz informacji uzyskanych od właściciela, może podlegać aktualizacji i nie stanowi oferty określonej w art. 66 i następnych K.C.

Szczegóły

Symbol oferty LW-30981
Powierzchnia 68,00 m²
Piętro 1
Rodzaj budynku biurowiec
Kaucja zabezp. 8000
Standard
Opłaty wg liczników woda, prąd, gaz
Ilość pięter w budynku 2
Stan lokalu Do wprowadzenia
Typ kaucji dwumiesięczna
Rok budowy 2020
Rodzaj lokalu jednopoziomowy
Czynsz najmu netto /m2 4 000,00 PLN
Czynsz najmu brutto /m2 4 920,00 PLN
Ogrzewanie CO gazowe
Możliwość parkowania tak

Pomieszczenia

Liczba pomieszczeń biurowych 3
Powierzchnia pomieszczeń biurowych od 8,91 m2
Liczba pomieszczeń sanitarnych 1
Powierzchnia pomieszczeń sanitarnych 7,01 m2
oferta na wyłączność
lokal na wynajem - Warszawa, Śródmieście, Centrum, Wspólna

Warszawa, Śródmieście, Centrum, Wspólna
lokal na wynajem

LW-30951

Do wynajęcia od lutego 2026r Lokal handlowo-usługowy 44,80m w ciągu lokali usługowych na parterze budynku mieszkalnego, z bezpośrednim wejściem z ulicy i dużymi oknami wystawowymi zajmującymi narożnik budynku. Składa się z dwóch poziomów. Na parterze 36 mkw: - ...

Powierzchnia
44,80 m2
Piętro
parter
Cena za m2
100,45 zł
cena 4 500
lokal na wynajem - Warszawa, Śródmieście, Centrum, Wspólna
oferta na wyłączność
lokal na wynajem - Warszawa, Śródmieście, Centrum, Górskiego

Warszawa, Śródmieście, Centrum, Górskiego
lokal na wynajem

LW-30987

Do wynajęcia dwupokojowy apartament o powierzchni 54,1 m², położony na 3. piętrze prestiżowego apartamentowca, idealny do prowadzenia działalności biurowej, kancelarii lub jako siedziba firmy. Lokal wykończony w wysokim standardzie, funkcjonalny i reprezentacyjny, ...

Powierzchnia
57,01 m2
Piętro
3
Pokoje
2 pokoje
Cena za m2
82,44 zł
cena 4 700
lokal na wynajem - Warszawa, Śródmieście, Centrum, Górskiego

Warszawa, Wola, Nowolipki, Żytnia
lokal na wynajem

LW-30988

 Mieszkanie dwupokojowe  na cele biurowe/kancelarię o powierzchni 66 mkw położone na Woli. Lokal nie umeblowany do własnej aranżacji.  Drzwi wejściowe antywłamaniowe. Na podłogach mozaika drewniana. Okna wychodzą w kierunku północno - wschodnim oraz północno-zachodnim. ...

Powierzchnia
66,00 m2
Piętro
2
Pokoje
2 pokoje
Cena za m2
53,03 zł
cena 3 500
lokal na wynajem - Warszawa, Wola, Nowolipki, Żytnia

Napisz do nas

Proszę wypełnić to pole
Proszę wypełnić to pole
Proszę wypełnić to pole
Proszę wypełnić to pole
Trwa wysyłanie...

Ta strona wykorzystuje pliki cookies w celach statystycznych oraz w celu dostosowania naszych serwisów do indywidualnych potrzeb klientów. Zmiany ustawień dotyczących plików cookie można dokonać w dowolnej chwili modyfikując ustawienia przeglądarki. Korzystanie z tej strony bez zmian ustawień dotyczących cookies oznacza, że będą one zapisane w pamięci urządzenia.

rozumiem